kuepker.tech
Montage von Markisen
Wohnmobil
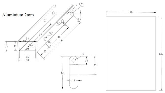
Im Rahmen der Markisen- Montage habe ich Halter angefertigt, welche die Stützen im Bedarfsfall am Wohnmobil aufnehmen können. Die Halter werden mit PU-Kleber aufgeklebt. Die kleinen originalen Plastikhalter oder Saugfüße waren keine Option.
Mit den von mir gefertigten Haltern konnte die Markisen- grundplatte ohne Löcher durch die Aussenhaut befestigt werden. Der Halt wird durch die übliche Verklebung zwischen Platte und Aussenhaut gewährleistet. Hier habe ich die Dachhaut vor der Verklebung auch noch foliert. Die Verklebung erfolgte nur umlaufend. Eine künftige Demontage der Platte wäre so möglich.